Call us on 0422259891 / E-mail us at waheed@haiderengineering.com.au
Call us on 0422259891 / E-mail us at waheed@haiderengineering.com.au
.jpg/:/rs=w:400,cg:true,m)
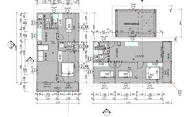
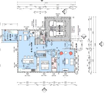
We offer building plans (2D/3D) for single/ multi- storey building plans, granny flats, CC plans and DA plans including detailed engineering plans and fabrication drawings. We prepare the plans, share our proposed design options with our clients, finetune our proposed design options to meet the requirements of our clients and lodge them for council approvals and/or private certifications. We offer architectural and detailed engineering plans for the following building structure:




.jpg/:/rs=w:370,cg:true,m)

We use cookies to analyze website traffic and optimize your website experience. By accepting our use of cookies, your data will be aggregated with all other user data.